
< Back to DDHH Tanauan
Catherine (Corner)
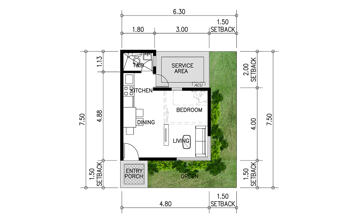
Lot Area (approx.):47.25 sqm.
Floor Area+/- 23.70 sqm.







BedroomT&BLiving AreaDining AreaKitchenService Area
All plans, specifications, illustration and colors are for identification and reference only. All details are subject to change without prior notice. Interior furnishings are not included
